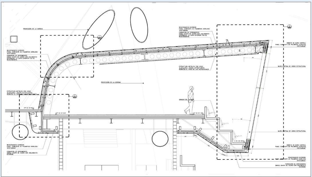
¿Qué es exactamente el nido del águila? ¿La parte mas alta entre el gallinero y el techo?TOMAS escribió: Dom, 30 Ago 2020, 20:39 Muchas novedades... confirmación del césped retractil, nido del águila...
OJO CON LA LUZ... el techo puede tener más funciones de la previstas. Estoy pensando que la luz que sale de la esquina norte puede ser en realidad una instalación de proyección. Lo mismo en el techo proyectan o descuelgan una superficie lisa y lo preparan todo para reflejar imágenes antes de los partidos, a modo de calentamiento.
Acabo de ver en https://www.youtube.com/watch?v=mSVtPoujdFM que los chinos ya hacen pantallas de cien metros de largo por 25 de alto.
FILTRACION PROYECTO (sin incluir la macro)
Re: FILTRACION PROYECTO (sin incluir la macro)
Re: FILTRACION PROYECTO (sin incluir la macro)
Brutal aporte Van Der Brus.
¡Brutal!
Me quedé en shock ayer al ver esas dos imágenes, tanto por lo que supone una filtración de tal calado como por lo impresionante del proyecto y las novedades.
¡Brutal!
Me quedé en shock ayer al ver esas dos imágenes, tanto por lo que supone una filtración de tal calado como por lo impresionante del proyecto y las novedades.
Re: FILTRACION PROYECTO (sin incluir la macro)
El palco del skybar. Exactamente según "La mano blanca" es esto:Harry escribió: Lun, 31 Ago 2020, 20:08¿Qué es exactamente el nido del águila? ¿La parte mas alta entre el gallinero y el techo?TOMAS escribió: Dom, 30 Ago 2020, 20:39 Muchas novedades... confirmación del césped retractil, nido del águila...
OJO CON LA LUZ... el techo puede tener más funciones de la previstas. Estoy pensando que la luz que sale de la esquina norte puede ser en realidad una instalación de proyección. Lo mismo en el techo proyectan o descuelgan una superficie lisa y lo preparan todo para reflejar imágenes antes de los partidos, a modo de calentamiento.
Acabo de ver en https://www.youtube.com/watch?v=mSVtPoujdFM que los chinos ya hacen pantallas de cien metros de largo por 25 de alto.
- Adjuntos
-
- nido.JPG (94.43 KiB) Visto 19966 veces
Re: FILTRACION PROYECTO (sin incluir la macro)
Ok. Gracias Tomás.TOMAS escribió: Lun, 31 Ago 2020, 20:17El palco del skybar. Exactamente según "La mano blanca" es esto:Harry escribió: Lun, 31 Ago 2020, 20:08¿Qué es exactamente el nido del águila? ¿La parte mas alta entre el gallinero y el techo?TOMAS escribió: Dom, 30 Ago 2020, 20:39 Muchas novedades... confirmación del césped retractil, nido del águila...
OJO CON LA LUZ... el techo puede tener más funciones de la previstas. Estoy pensando que la luz que sale de la esquina norte puede ser en realidad una instalación de proyección. Lo mismo en el techo proyectan o descuelgan una superficie lisa y lo preparan todo para reflejar imágenes antes de los partidos, a modo de calentamiento.
Acabo de ver en https://www.youtube.com/watch?v=mSVtPoujdFM que los chinos ya hacen pantallas de cien metros de largo por 25 de alto.
- La Mano Blanca
- Mensajes: 660
- Registrado: Vie, 24 Jul 2020, 18:29
Re: FILTRACION PROYECTO (sin incluir la macro)
Respecto al corte de las gradas al llegar al este, yo creo que con «chapar» el hormigón a juego con la piel exterior o blanco como las cerchas ya quedaría bastante resultón...
«Yo os digo: es preciso tener todavía caos dentro de sí para poder dar a luz una estrella danzarina. Yo os digo: vosotros tenéis todavía caos dentro de vosotros.»
- La Mano Blanca
- Mensajes: 660
- Registrado: Vie, 24 Jul 2020, 18:29
Re: FILTRACION PROYECTO (sin incluir la macro)
BTW, adjunto las imágenes «enderezadas» y en negativo, para apreciar otros detalles.
«Yo os digo: es preciso tener todavía caos dentro de sí para poder dar a luz una estrella danzarina. Yo os digo: vosotros tenéis todavía caos dentro de vosotros.»
Re: FILTRACION PROYECTO (sin incluir la macro)
Pensé lo mismo al ver la imagen, no me extrañaría nada que tengan pensado hacer algo como en el Etihad Stadium pero con salidas independientes...elbejafran escribió: Dom, 30 Ago 2020, 21:38 Increíble!!!
Parece que habrá modificación también en los banquillos, y el acceso a ellos será directo desde cada vestuario por la parte lateral de cada banquillo y no por el centro como hasta ahora...
al menos es lo que interpreto yo...
https://www.youtube.com/watch?time_cont ... e=emb_logo
Re: FILTRACION PROYECTO (sin incluir la macro)
en cuanto al debate del marcador 360 y siempre
que sea el definitivo , me parece que es apropiado a la forma del estadio, es un homenaje al antiguo , único .. que no se vea en el último anfiteatro lo veo
un dato paradójico a más
a más si van a tener otro
tipo de pantallas ... por desgracia nos caparon la
altura tope y no se puede hacer nada más
que sea el definitivo , me parece que es apropiado a la forma del estadio, es un homenaje al antiguo , único .. que no se vea en el último anfiteatro lo veo
un dato paradójico a más
a más si van a tener otro
tipo de pantallas ... por desgracia nos caparon la
altura tope y no se puede hacer nada más
Re: FILTRACION PROYECTO (sin incluir la macro)
¿Qué es la MACRO? 
- La Mano Blanca
- Mensajes: 660
- Registrado: Vie, 24 Jul 2020, 18:29
Re: FILTRACION PROYECTO (sin incluir la macro)
Respecto a la visibilidad del marcador, tampoco es tan grave si pensamos que en el último anfiteatro creo que no suele haber mucha gente en liga salvo partidos gordos (la ocupación media del estadio creo que anda por el 65%). Lo que sí que no entiendo es que se ensanche en los fondos más allá de la viga de refuerzo...
También, en los laterales se podría hacer de doble cara en lugar de dejar la sujección a la vista.
También, en los laterales se podría hacer de doble cara en lugar de dejar la sujección a la vista.
«Yo os digo: es preciso tener todavía caos dentro de sí para poder dar a luz una estrella danzarina. Yo os digo: vosotros tenéis todavía caos dentro de vosotros.»
Re: FILTRACION PROYECTO (sin incluir la macro)
Mola más este, ya que lo más alto y grande esta en los fondos y no te corta la visión del Bowl .La Mano Blanca escribió: Dom, 30 Ago 2020, 20:17 Era de esperar, y no he hecho cálculos, pero creo que el videomarcador 360 es bastante más grande que el del SoFi Stadium. Eso encendido va a ser de un hipnótico que ríete de las tragaperras...
Puta locura de estadio nos van a dejar,yo por ejemplo iré a partidos de los malos(Valladolid,Eibar,Alaves,Cádiz,grupo de Champions,Copa del Rey) me pasare el día tipo USA y el partido será lo de menos jeje.
Slds !
¡¡ Hala Madrid y nada más !! 
- La Mano Blanca
- Mensajes: 660
- Registrado: Vie, 24 Jul 2020, 18:29
Re: FILTRACION PROYECTO (sin incluir la macro)
Hay una cosa que no acabo de entender; en todos los renders públicos el videomarcador aparecía con una inclinación mucho más pronunciada, y en esta filtración está mucho más «derecho». Aunque cambie su forma perimetral por la construcción del techo, eso no afecta al ángulo que quieran darle (que tampoco tiene por qué ser único, podría «retorcerse»).
«Yo os digo: es preciso tener todavía caos dentro de sí para poder dar a luz una estrella danzarina. Yo os digo: vosotros tenéis todavía caos dentro de vosotros.»
Re: FILTRACION PROYECTO (sin incluir la macro)
Ah,¿quieres decir que al final el videomarcador no va a tener esa inclinación tan guapa de la que todos hablamos y nos encantó?La Mano Blanca escribió: Vie, 04 Sep 2020, 18:40 Hay una cosa que no acabo de entender; en todos los renders públicos el videomarcador aparecía con una inclinación mucho más pronunciada, y en esta filtración está mucho más «derecho». Aunque cambie su forma perimetral por la construcción del techo, eso no afecta al ángulo que quieran darle (que tampoco tiene por qué ser único, podría «retorcerse»).
076E8598-5083-421E-9A3D-8C7F5DE0BD01.jpeg
124A20CE-77DB-4BBE-AE15-20A3F36FAA34.jpeg
Re: FILTRACION PROYECTO (sin incluir la macro)
https://www.youtube.com/watch?v=rKpdZ-qdpvY Viendo este vídeo del Sofi, el videomarcador es tan espectacular y tan grande que casi resta protagonismo al interior del estadio. El que aparecía en los primeros renders del Bernabeu me parecía espectacular como quedaba integrado en el estadio pero como pantalla creo que era absolutamente inútil por su ratio de aspecto tan panorámico. En las demos se veía algún gol repetido y se veía que aquello se iba a quedar un quiero y no puedo, como pantalla. Creo que envejecería muy rápido cuando fuesemos viendo otros estadios con videomarcador 360. Con la modificación que aparece en la filtración el resultado es muy distinto. Seguramente pase como en el Sofi que estorbará para la visibilidad pero creo si cumplirá con su función como videomarcador mucho mejor y no se quedará en un gimmick. Además que el uso de pantalla en el futuro tiene posibilidades ilimitadas.
Re: FILTRACION PROYECTO (sin incluir la macro)
A vueltas con el tema del corte de grada y el posible hueco que dejaría la eliminación de los torreones, en el segundo vídeo institucional que mostró el club, al salir el graderio lleno puede apreciarse por unos instantes que no existe hueco alguno, todo está bien separado por tabicado y queda bastante bien al menos lo poco que puede verse de la esquina. Imagino que ya tendrán más de una solucion pensada los ingenieros de este pedazo de obron.
Saludos y Hala Madrid!!
Saludos y Hala Madrid!!
Re: FILTRACION PROYECTO (sin incluir la macro)
Decir que esta filtración es la que me hace soñar con el nuevo Bernabéu... Ojalá en unos meses veamos algún detalle de la cueva ..de la preparación y obras
Slds familia !!
Slds familia !!
¡¡ Hala Madrid y nada más !! 
-
elbejafran
- Mensajes: 22
- Registrado: Vie, 24 Jul 2020, 14:49
Re: FILTRACION PROYECTO (sin incluir la macro)
Pues parece que mi interpretación iba bastante encaminada después de ver lo que ha dicho NEB en la ultima actualización...Van Der Brus escribió: Dom, 30 Ago 2020, 21:45Esos son huecos son palcos VIP a ras de suelo.elbejafran escribió: Dom, 30 Ago 2020, 21:38 Increíble!!!
Parece que habrá modificación también en los banquillos, y el acceso a ellos será directo desde cada vestuario por la parte lateral de cada banquillo y no por el centro como hasta ahora...
al menos es lo que interpreto yo...
El tunel de vestuarios y banquillos apenas variará
- Van Der Brus
- Mensajes: 298
- Registrado: Lun, 20 Jul 2020, 19:32
Re: FILTRACION PROYECTO (sin incluir la macro)
Sobre el interior (el bowl).
Alguien más apuesta a que en la ultima fase de la reforma (como han procedido con el estadio del osasuna) se va a añadir sobre la grada actual (en grada baja, 1º y 2º anfiteatros que son los que datan de los años 50) gradas prefabricadas para ya sí que el interior tenga aspecto moderno?
Si se van a redistribuir pasillos, espacio entre asientos mayores, mayor distancia entre filas... no me quepa la menor duda de que realizandolo por encofrado resultará bastante mas lento y costoso que superponiendo modulos prefabricados de hormigon claro tal y como pongo en las imagenes



Alguien más apuesta a que en la ultima fase de la reforma (como han procedido con el estadio del osasuna) se va a añadir sobre la grada actual (en grada baja, 1º y 2º anfiteatros que son los que datan de los años 50) gradas prefabricadas para ya sí que el interior tenga aspecto moderno?
Si se van a redistribuir pasillos, espacio entre asientos mayores, mayor distancia entre filas... no me quepa la menor duda de que realizandolo por encofrado resultará bastante mas lento y costoso que superponiendo modulos prefabricados de hormigon claro tal y como pongo en las imagenes
Re: FILTRACION PROYECTO (sin incluir la macro)
Ojalá se haga pero si no se ha aprovechado para hacerlo ahora no creo que se haga. ¿En el lateral de Castellana con toda la grada abatible cómo se hará?
- Jarrillero78
- Mensajes: 181
- Registrado: Mar, 28 Jul 2020, 22:20
Re: FILTRACION PROYECTO (sin incluir la macro)
Supongo que se montara un segmento de grada prefabricada sobre la estructura abatible.juniki escribió: Lun, 19 Oct 2020, 00:09 Ojalá se haga pero si no se ha aprovechado para hacerlo ahora no creo que se haga. ¿En el lateral de Castellana con toda la grada abatible cómo se hará?
La apuesta de Van der Brust podria ser, de hecho podria ser parte de la macro...